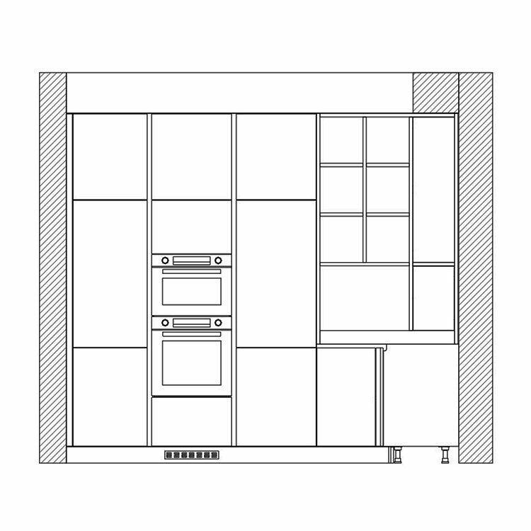
П образная кухня спланирована так, чтобы объединить столешницу с подоконником и устроить напротив окна небольшой столик для завтрака. Высокие шкафы со встроенной техникой разместились вдоль стены. Стеллажи в шпоне, расположенные по углам, добавляют кухне уюта.
ПРОЕКТ И РЕЗУЛЬТАТ - ВСЕ КАРТИНКИ УВЕЛИЧИВАЮТСЯ