ИНВЕСТПРОМГРУПП
Главная
Заказать
Галерея
Контакты
Еще
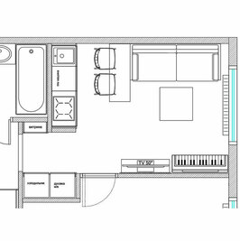
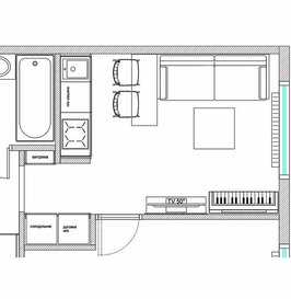
Все 3 части этой кухни: зона приготовления, шкафы с встроенной техникой и витрина были встроены в ниши. В результате кухня "слилась" со стенами и освободилось место для полноценной гостиной с диваном, телевизором и пианино.
ПРОЕКТ И РЕЗУЛЬТАТ - ВСЕ КАРТИНКИ УВЕЛИЧИВАЮТСЯ
Вернуться в к
ухни